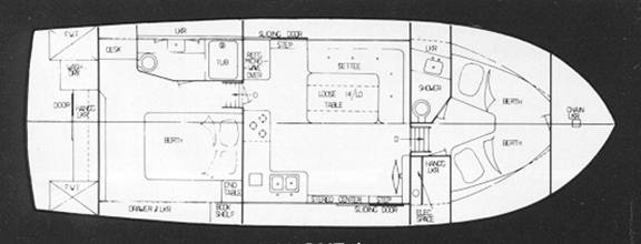
Defever 41' Classic
LOA: 40' 7"; LWL 34'07"; BEAM 14'02" DRAFT 4'; FUEL 400 gallons;
WATER: 250 gallons; DISPLACEMENT 33,000 (dry)